Catégorie : logements individuels

Catégorie : logements individuels
Programme : Maison individuelle
Lieu: Joinville Le Pont (94)
Mission: Complète
Maîtrise d’ouvrage: Privée
Mandataire: DX ARCHITECTURES
Équipe: Cardonnel Ingénieurie-BET thermique
Surface: 123 m² shon
Budget: 400 000 €HT
Performance: RT 2012
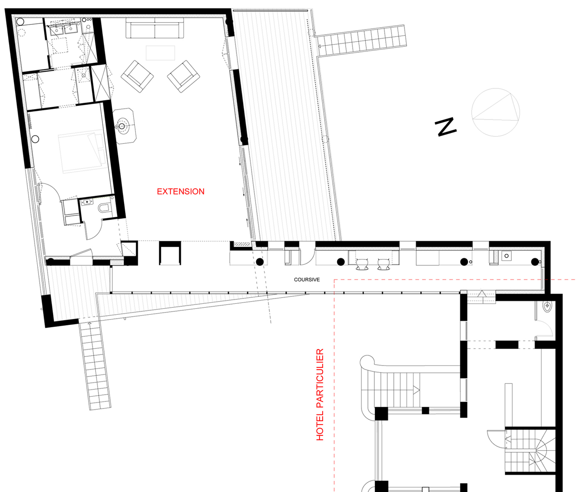
Le projet se situe dans un quartier résidentiel de Joinville le Pont, à proximité des bords de Marne, en zone inondable. Il vient en extension d’un hôtel particulier du XIX° siècle. Le cahier des charges prévoit une large terrasse, un séjour permettant de réaliser des réceptions ainsi qu’une chambre et sa salle de bain.
Les fortes contraintes liées au programme, combinées aux réglementations en vigueur ont stimulé la créativité et ont participé au façonnement des volumes. L’édifice créé se compose d’un volume en brique et d’une coursive qui le relie à Hôtel. Ces deux éléments interpénètrent pour former une entité unique. Récupération des eaux de pluie, isolation performante, toiture végétalisée, triple vitrage, permettent de répondre aux préoccupations écologiques.
















