Catégorie : logements collectifs

Catégorie : logements collectifs
Programme: 25 logements
Lieu: Saint-Nazaire (44)
Mission: DCE
Maîtrise d’ouvrage : Kaufman & Broad Nantes
Mandataire: Atelier cité Architectes
Equipe: BET Cerba & Isocrate
Surface: 1 800 m² shon
Budget: NC
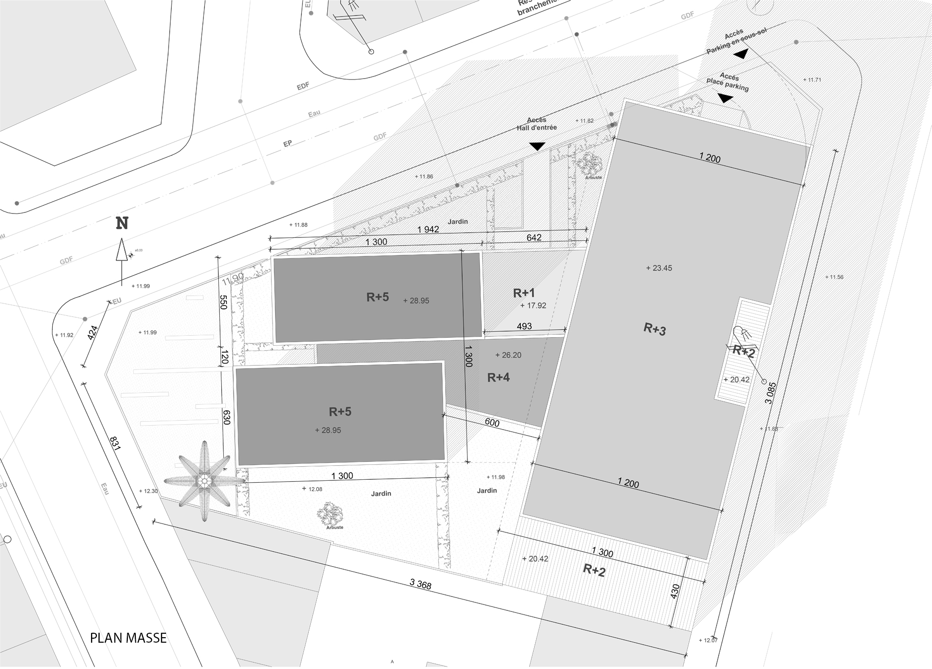
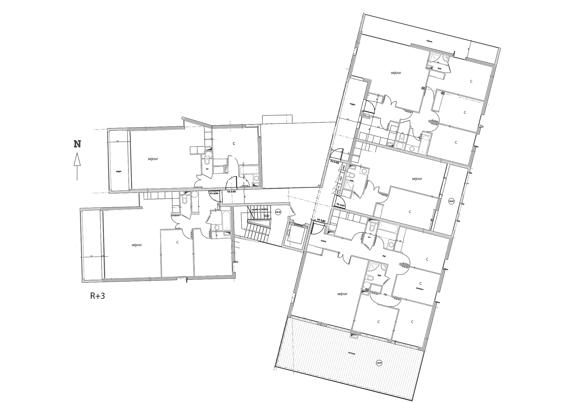
La composition des masses sur la parcelle est de type « ouverte ». Un premier bâtiment en R+3 vient reprendre l’alignement et les gabarits de la rue de la Trinité. Le deuxième bâtiment est disposé de façon à satisfaire aux prospects urbains et à dégager une perspective depuis la rue Jollinier. Sa hauteur, équivalente à R+5, vient « s’opposer » au gabarit imposant de l’équipement hospitalier. Il agit comme un contrepoint, capable de structurer les espaces résidentiels et publics. Entre les deux constructions s’intercale tout le dispositif de distribution verticale des étages. Les logements sont en quasi-totalité traversants. En raison des fortes probabilités de trouver le rocher et de l’eau à de faibles profondeurs, un seul niveau de stationnement, d’une capacité d’environ 30 places, est prévu.
Un jardin végétalisé avec l’implantation d’un palmier est réalisé en pied d’immeuble, rappelant la proximité de la mer.


