Catégorie : logements collectifs


Catégorie : logements collectifs
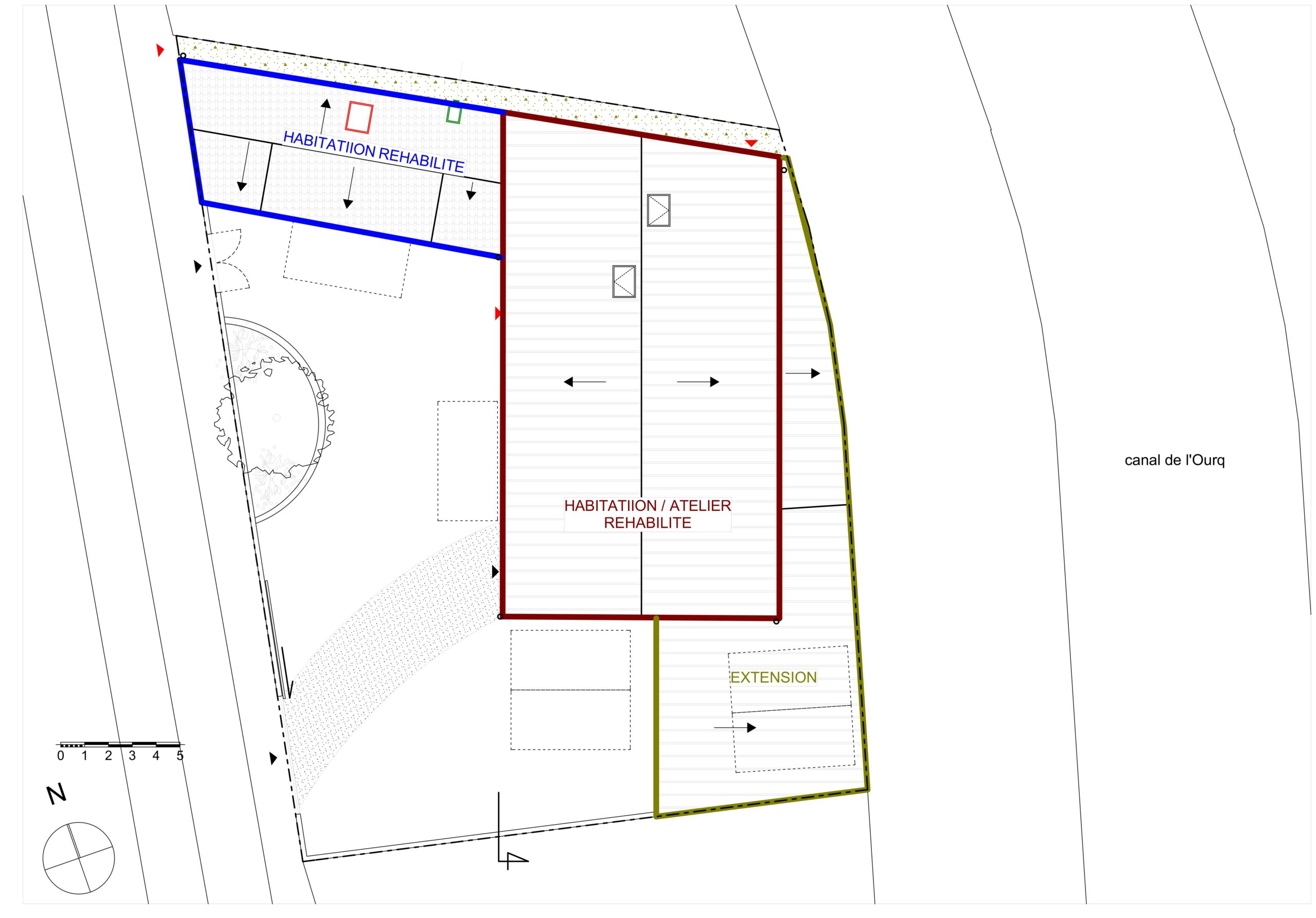
Programme: Réhabilitation complète de deux bâtiments
Lieu: Villenoy (77)
Mission: Complète
Maîtrise d’ouvrage : Privée
Mandataire: DX ARCHITECTURES
Surface: 420 m² shon
Budget: NC
Performance: RE 2020
Le projet, situé au zone pavillonaire, consiste en la rehabilitation et l’extention d’un entrepot en vue de réaliser 2 logements ainsi que la réhabilitation complète d’un bâtiment d’habitation comprenant 3 logements. La parcelle est réaménagée : traitement paysagé, intégration des places de stationnement etc.
