Catégorie : équipements / medical

Catégorie : équipements / medical
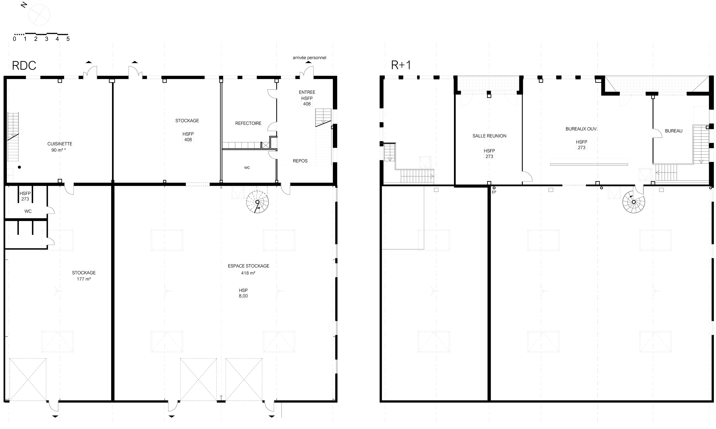
Programme : Aménagement d’entrepôts
Lieu : Bailly-Romainvilliers (77)
Mission: PC
Maîtrise d’ouvrage: Privé
Mandataires: DX
Équipe:
Surface: 1 200 m² SP
Budget: – € HT
Performance: RE2020
Le projet concerne l’aménagement d’entrepôts et d’espaces de bureaux sur 1 223 m², répartis sur deux niveaux. Il comprend les aménagements suivants :






